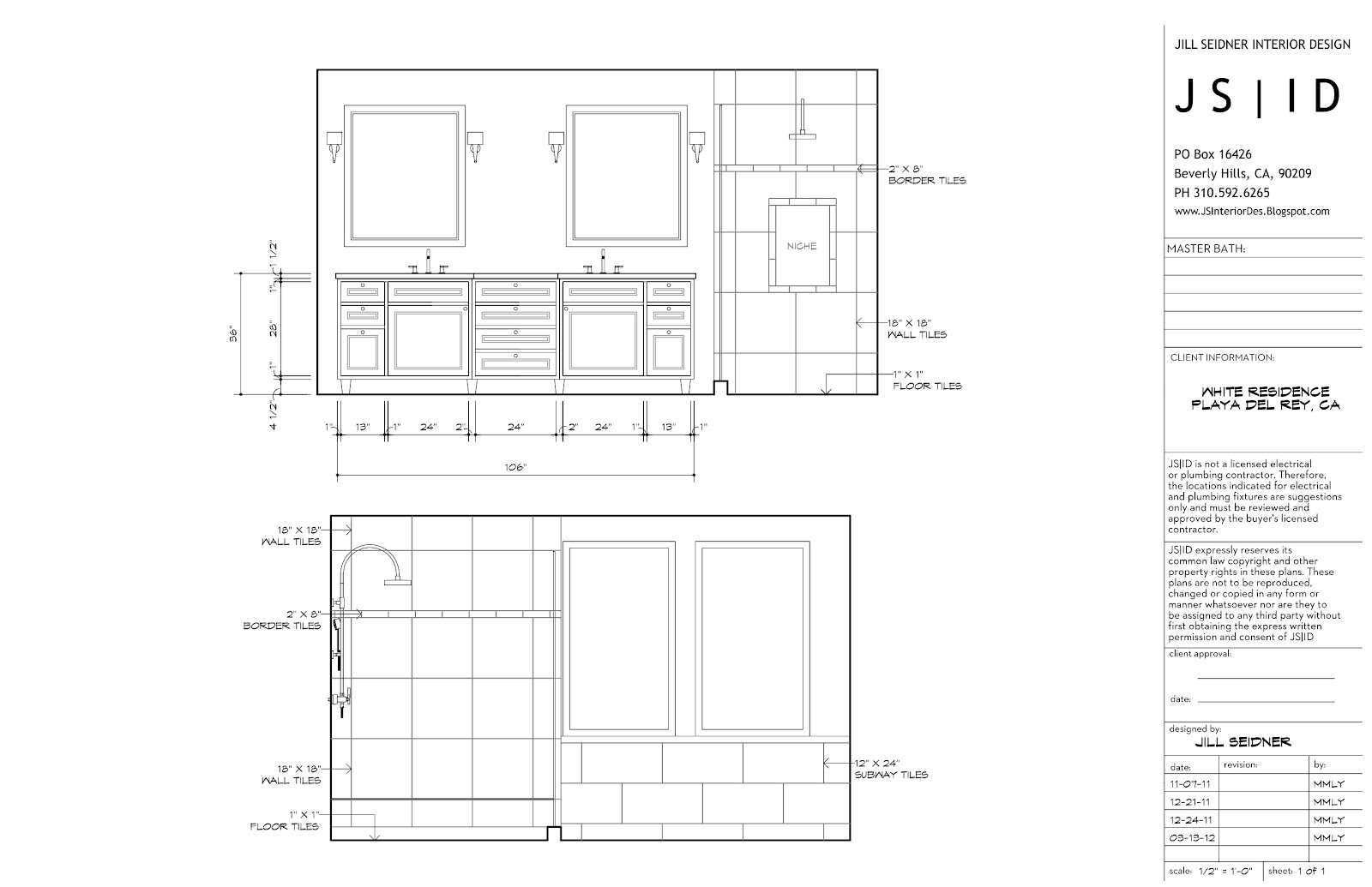
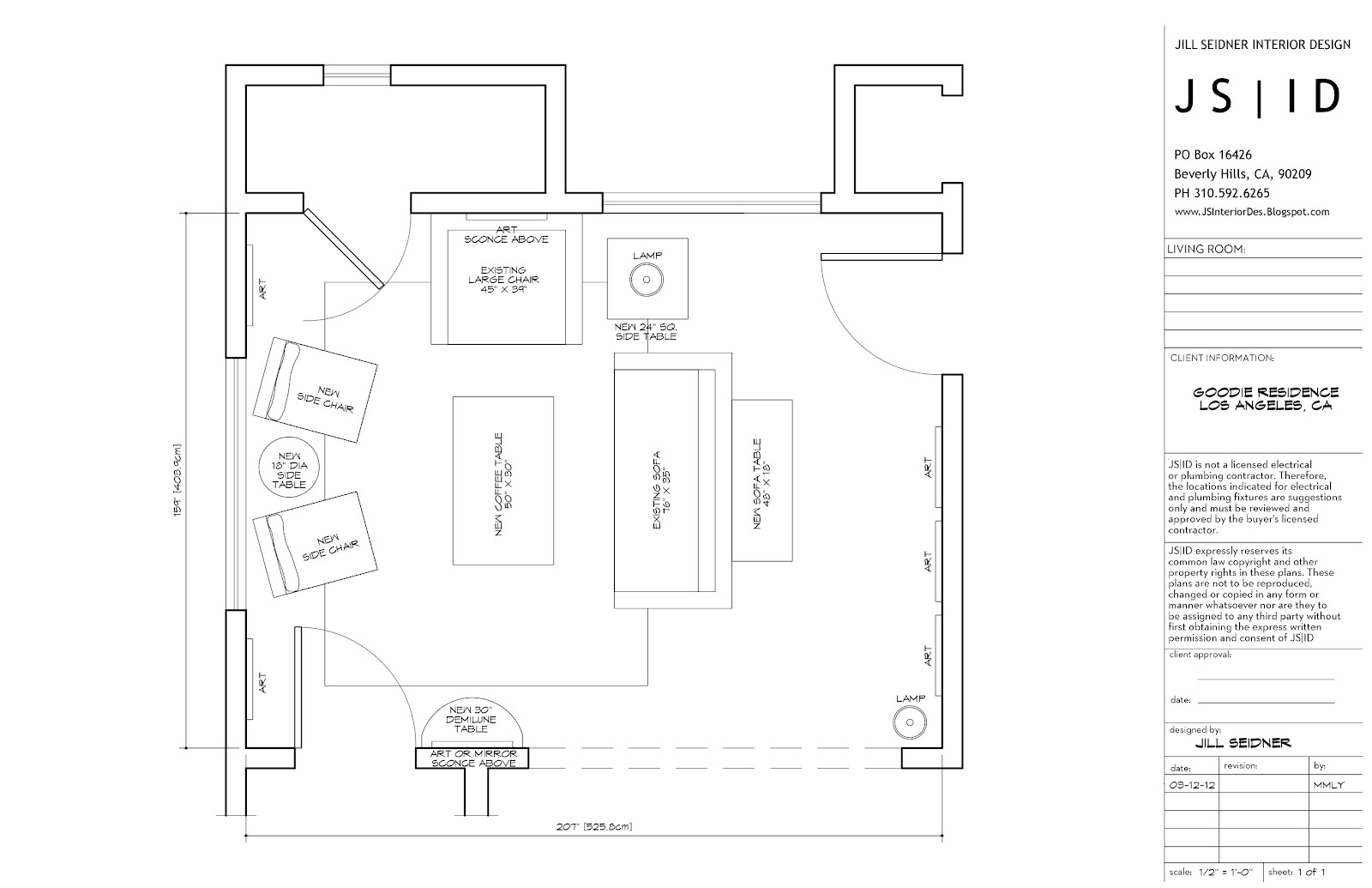
Monday

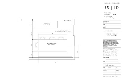
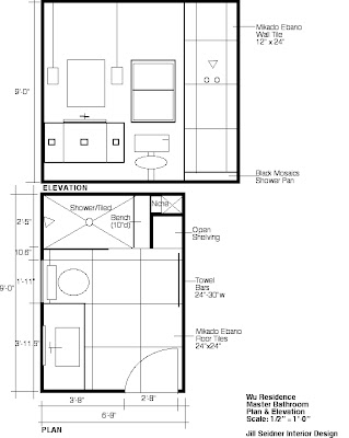
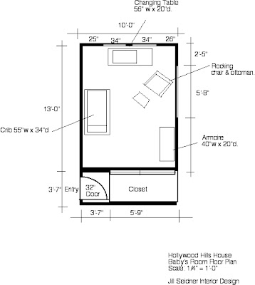
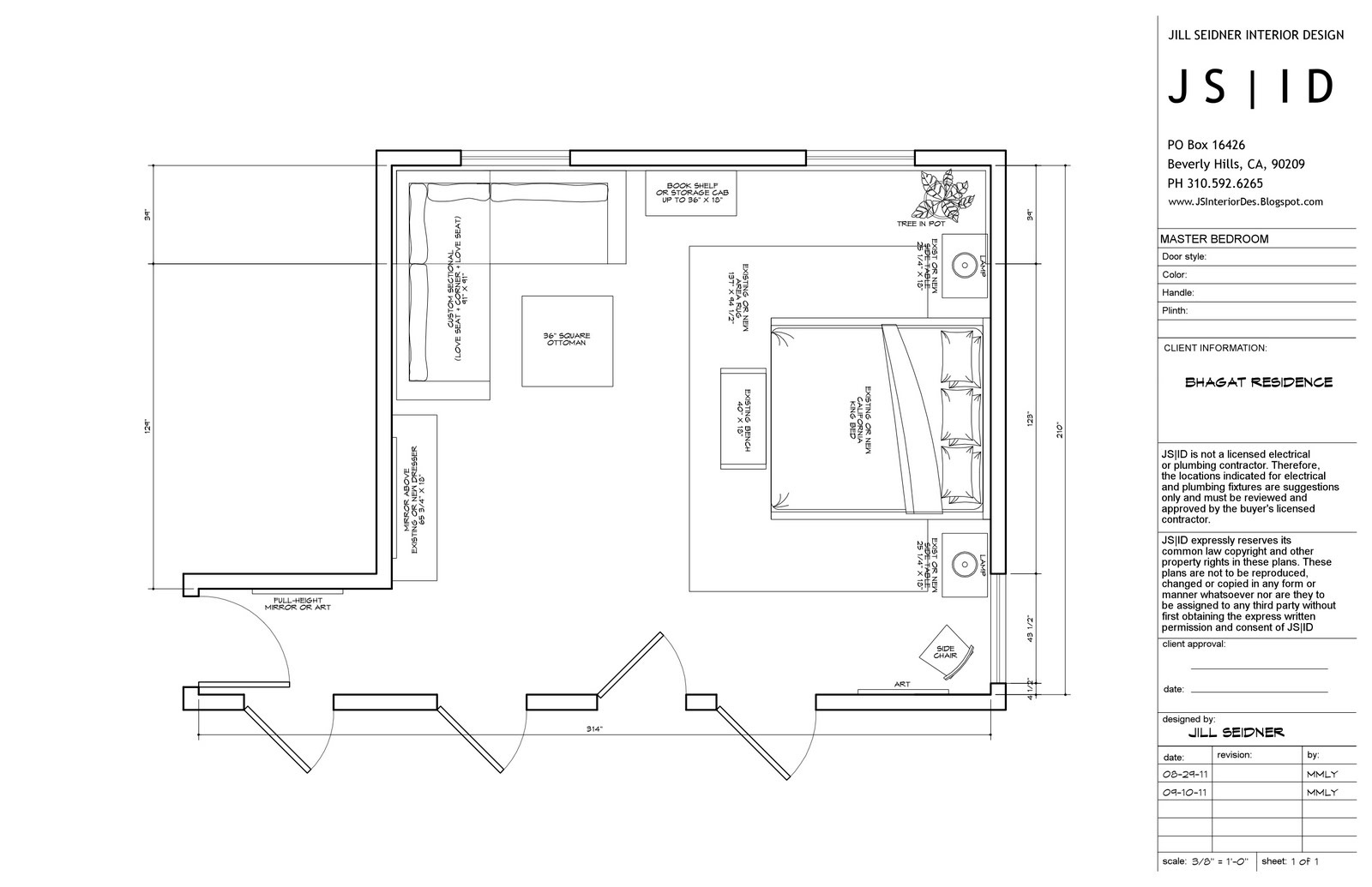
JSID Drawings


















ar: both; text-align: center;">